微硬创新®MODBUS转PROFIBUS网关在山西阳煤电石项目煤气收集中的应用
来源: 作者:北京微硬创新科技有限公司 发布时间:2012-05-29 15:29 点击数:939
山西阳煤电石化工有限责任公司,以煤炭和煤炭化工产业为主导产业,公司正在建设的一期年产40万吨电石项目是晋中市重点工业项目。项目采用国内单台产能最大的6台40000KVA全密闭电石炉,配套干法除尘系统、单台产能最大的2台600吨/天气烧套筒石灰窑和PLC集中控制管理系统等国内最先进的设备和生产工艺。项目总投资8.9亿元。
在电石的生产过程中,会产生大量的煤气即CO,排到空气中会造成严重的空气污染并且造成CO资源的浪费。因此在生产过程中要不断收集煤气,供给下游用户继续使用。以下介绍应用微硬创新的MODBUS转PROFIBUS网关PBMD485-K20将煤气柜与PLC连接的配制方法。
煤气柜这边主要是气柜测高仪,采用的是MODBUS通讯方式。帧格式如下:
发送命令
1)[设备地址] [命令号01] [起始寄存器地址高8位] [低8位] [读取的寄存器数高8位] [低8位] [CRC校验的高8位] [CRC校验的低8位]
2)[设备地址] [命令号03] [起始寄存器地址高8位] [低8位] [读取的寄存器数高8位] [低8位] [CRC校验的高8位] [CRC校验的低8位]
RTU返回数据
|
地址 |
命令号 |
数据 长度 |
数据 |
循环冗余校验 |
|||||||
|
0-99 (0-63H) |
01 |
4 |
高度警 |
水封警 |
备用1 |
备用2 |
|
CRC高 |
CRC低 |
||
|
03 |
38 (26H) |
柜容 (4字节) |
柜压 (2字节) |
柜高 (2字节) |
1-5塔高度 (2字节*5) |
1-4塔水封高度 (2字节*4) |
1-4塔水温 (2字节*4) |
备用 (4字节) |
|||
|
其他+80H |
返回接收数据 |
||||||||||
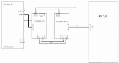
- MODBUS转PROFIBUS网关的硬线连接
如图1所示连接设备,各设备设置如下:
- MODBUS转PROFIBUS网关PBMD485-K20拨码开关设置:
⑴. 设置485工作方式为主站(on)
⑵. 设置PROFIBUS DP 从站地址
B. SQC气柜设置
⑴. 波特率(缺省:9600)
⑵. 数据位(缺省:8位)
⑶. 奇偶校验(缺省:无)
⑷. 485从站地址(缺省:1)

图1. PLC与SQC气柜连线图
2. MODBUS转PROFIBUS网关在STEP 7中的配置说明
⑴. 首先将GSD文件PBMDMM.gsd导入到STEP 7 硬件组态库中,
见图2. 图3.(先关闭硬件组态文件,再导入gsd文件)
⑵. 打开组态文件,在DP网中插入PBMDMM/V02分站见图4.
⑶. 双击PBMDMM/V02,再General中设置DP地址,在Parameter Assignment中设置其它参数,见图5。(模板status:DI 0;control: DQ 0. 可变)
⑷. 插入 read 19 Words(4xxxx),双击并设置MODBUS 从站地址,见图6
⑸. 插入 read 19 bits(0xxxx),双击并设置MODBUS 从站地址,见图7
3. 启动MODBUS转PROFIBUS网关PBMD485-K20
以上工作完成了,最后一点是要启动微硬模块MODBUS转PROFIBUS网关开始工作。本例控制字为QB0(在SLOT2里面),在OB1模块里添加如下程序:


图2. 导入gsd文件步骤1

图3. 导入gsd文件步骤2

图4. DP插入PBMDMM/V02

图5. 设置PBMDMM/V02参数

图6. 插入、设置19Words

图7. 插入、设置32 bits
以上为微硬创新MODBUS转PROFIBUS网关PBMD485-K20的应用过程。如果您有任何疑问,可以随时与我们的技术人员联系,了解学习相关知识。也可以登录www.profibus-dp.com了解相关配置方法。






